ARCHOMIDEA Design

216

Langley Township, B.C.

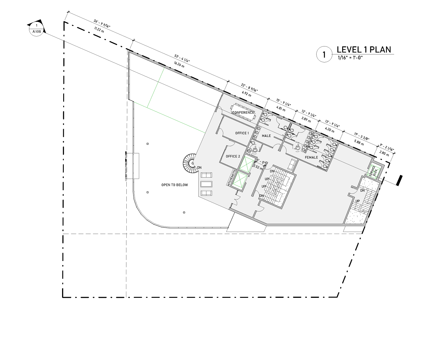
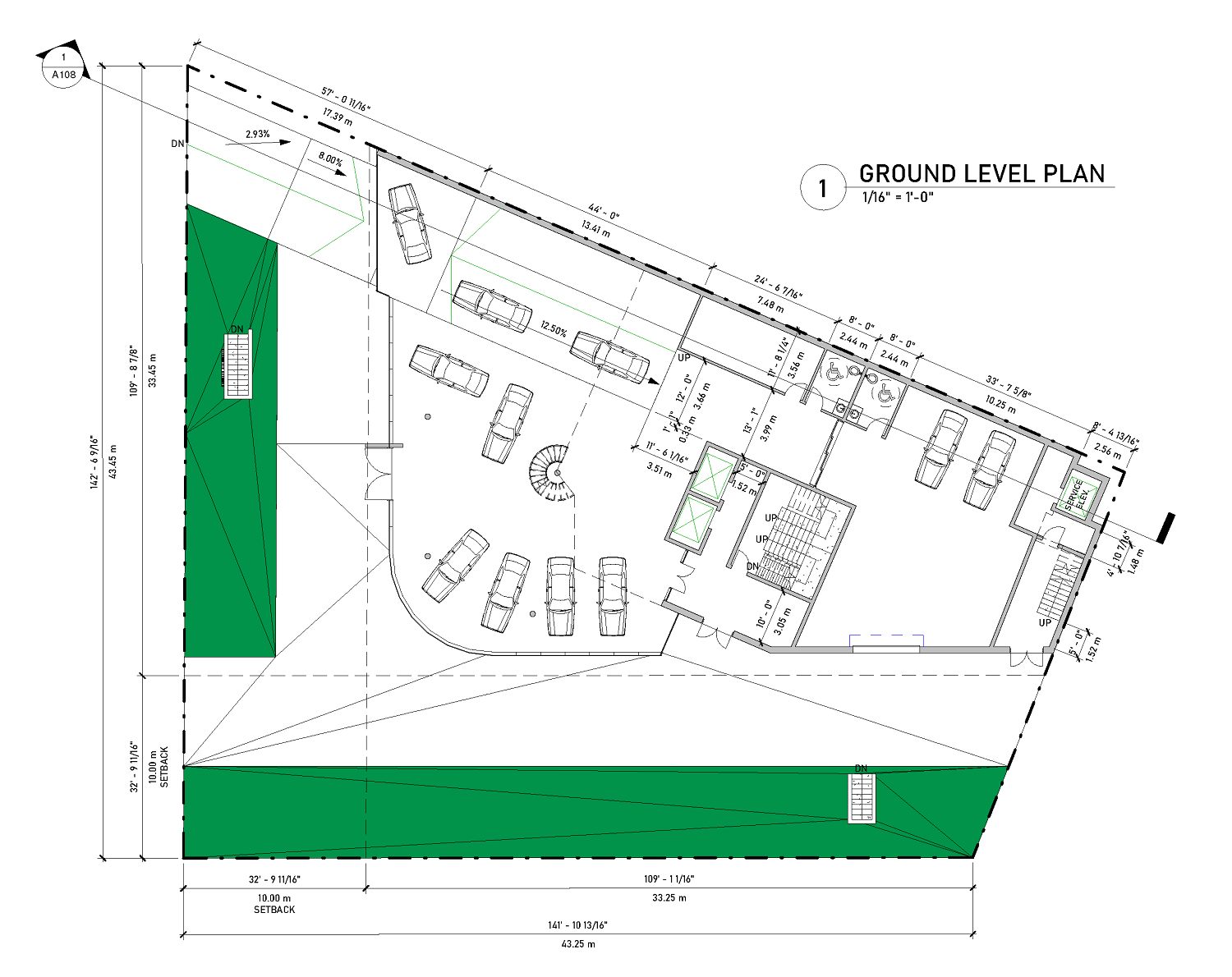
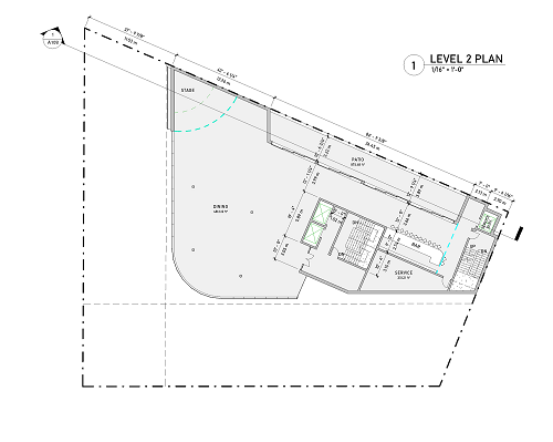
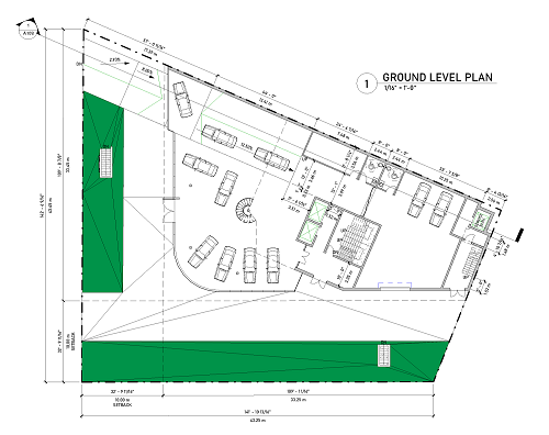
216 is an almost 25,000-square-foot mixed-use commercial building (dealership+event center). The trapezoidal shape of the site has determined the building footprint, accommodating the showroom, sales offices, service garage, and the event center on the upper level. This project is a collaborative effort with Harmony Architecture. It is currently in progress, and we anticipate that it will be well-received by the local community. The building is set to be impressive, beautiful, and stunning.