ARCHOMIDEA Design

Ottawa Avenue

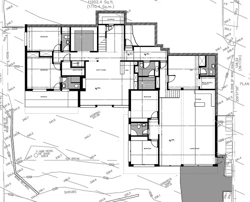
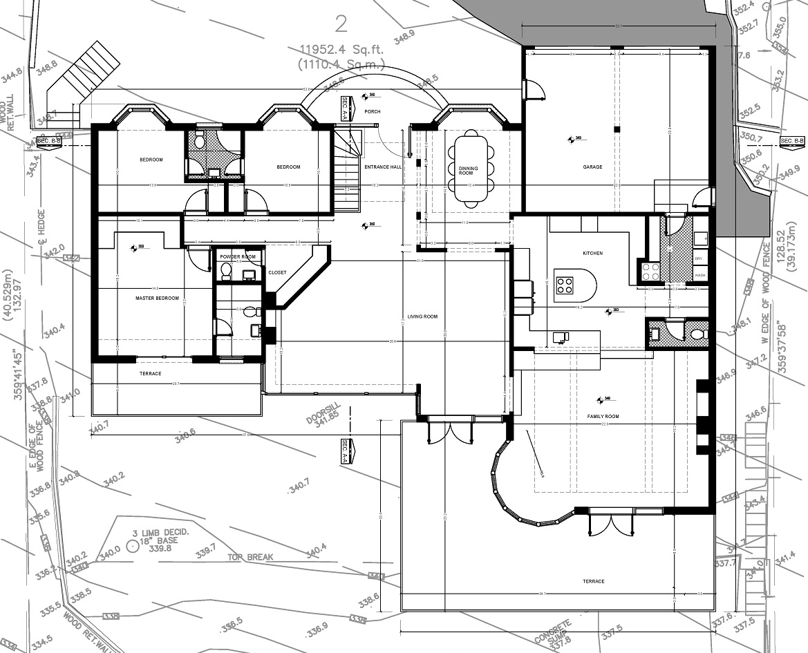
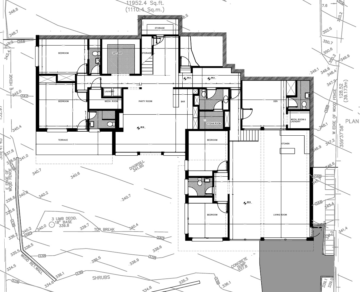
Our team was commissioned to redesign and draft plans for the renovation of a West Vancouver single-family residence. The house was completely reconstructed from the foundation up while maintaining the original structure's integrity and incorporating elegant modern touches. The interior features concrete and pine floors, carefully placed paint on the walls and cabinetry, culminating in a spacious and inviting ambiance.