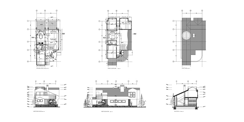
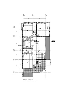
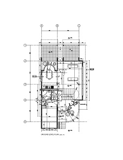
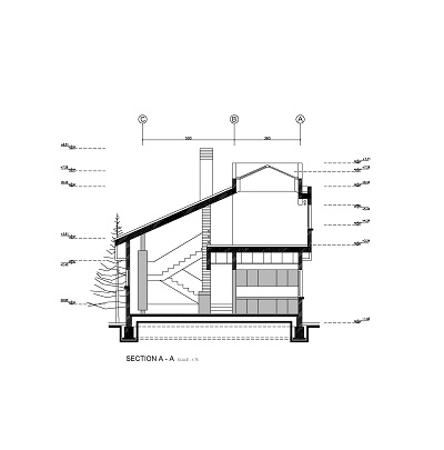
ARCHOMIDEA Design

Shore House

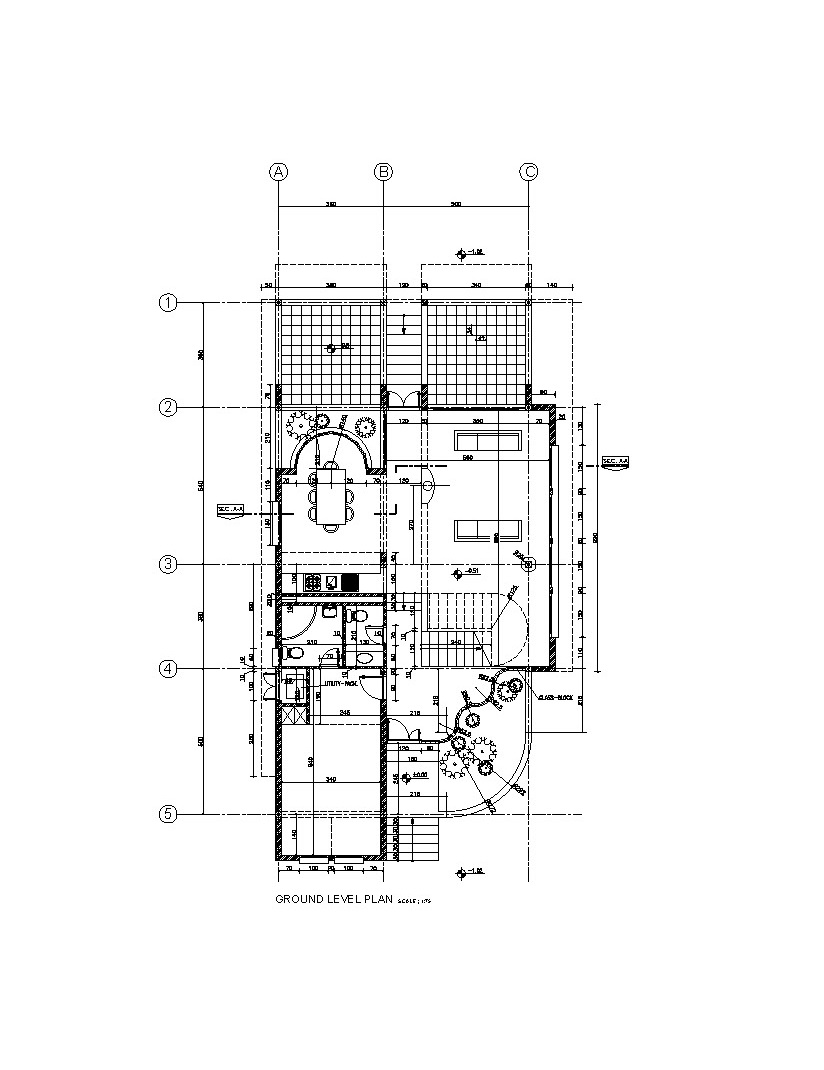
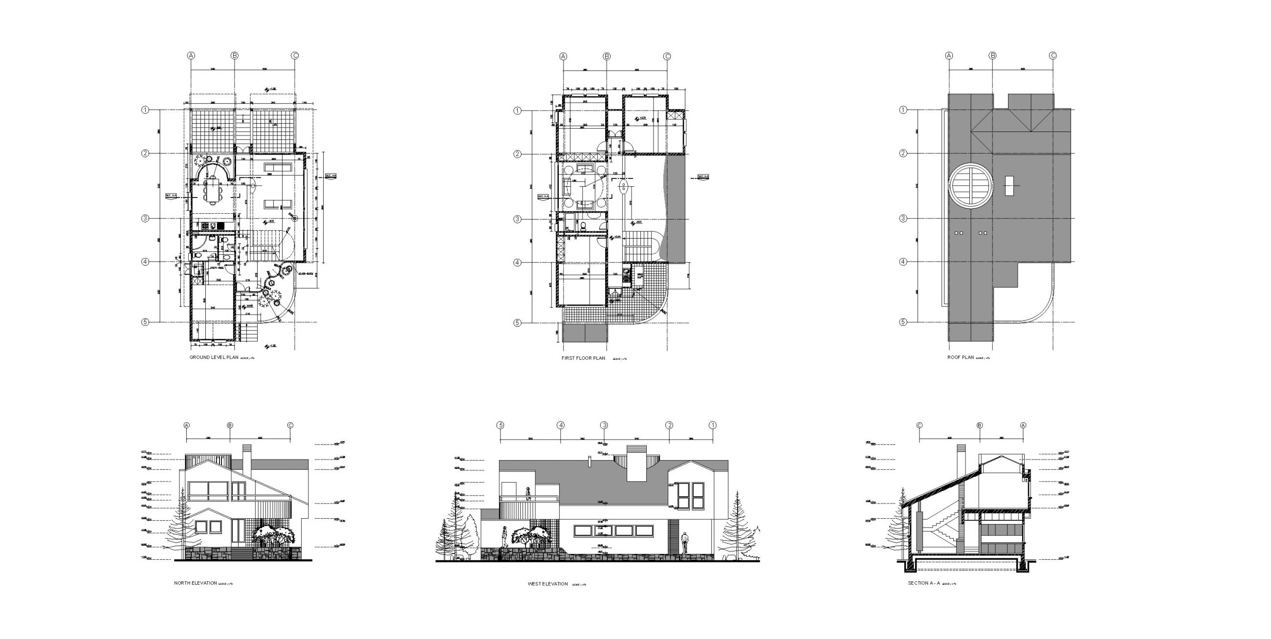
West Vancouver, BC.This four-bedroom residence features a two-story open floor plan that seamlessly integrates indoor and outdoor living. Ideal for entertaining, the kitchens and great rooms open up to outdoor balconies with stunning views. Residents also enjoy easy access to the beach and nearby trails, as well as a shared public space with a yoga deck, offering an unparalleled shore living experience.